{New Listing!} Ideal Studio on the Park • Trump Parc, 106 Central Park South, New York, NY 10019
/
Charming Studio Overlooking Central Park – Prime Location at 106 Central Park South.
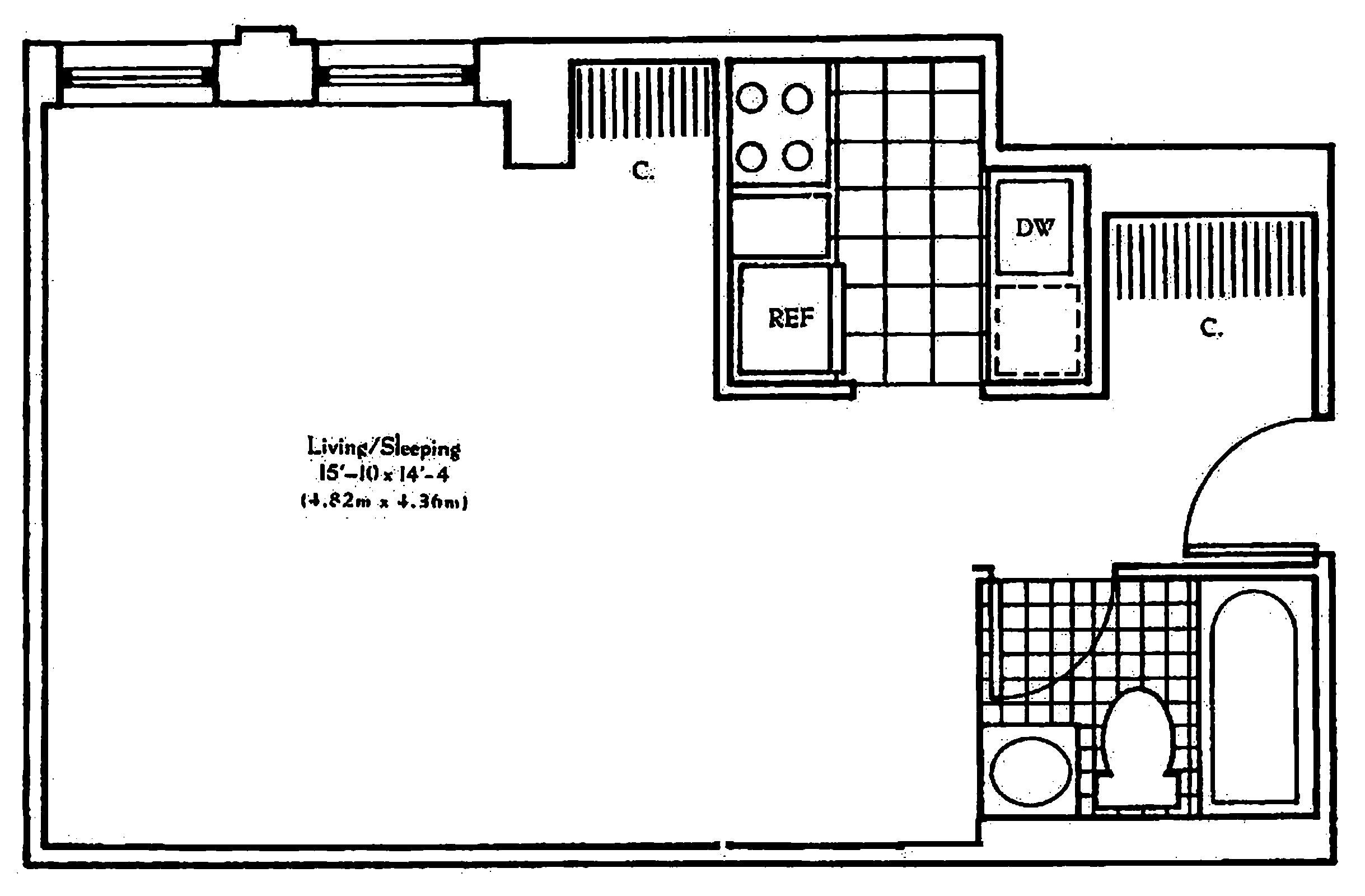
Welcome to this charming and spacious studio residence ideally situated at Trump Parc, directly across from Central Park South. Offering both comfort and convenience, this well-maintained home is perfectly suited for those seeking a refined city lifestyle in an unbeatable location.
The apartment features beautiful hardwood floors, a marble-appointed bathroom, and generous closet space, along with custom built-in shelving and bookcases that enhance both functionality and design. Thoughtfully laid out, the space provides a comfortable and inviting living environment.
Residents of Trump Parc enjoy full-service luxury living, including a 24-hour doorman, white-glove concierge services, and valet service. On-site parking is also available for an additional fee via the adjacent garage.
Located just steps from Central Park, this premier address places you moments from Fifth Avenue’s world-class shopping, the Theater District, and some of New York City’s finest dining and entertainment. Convenient access to multiple subway lines (N, Q, R, F, A, B, C, D, and 1) ensures effortless commuting throughout the city.
Schedule your private showing today.
Details
Monthly Rent Price $3,600.00
School District 3
Size 0 Bedroom (Studio) | 1 Bathroom
Sq Footage 405 ft²
